ブリス・ド・メール
賃料
1.32万円
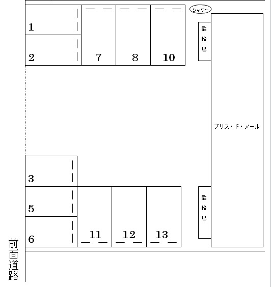
区画図
外観
駐車場